Condo à vendre, Montréal (Rosemont/La Petite-Patrie)
Photo aérienne
Photo aérienne
Autre
Salle à manger
Salon
Cuisine
Cuisine
Vue d'ensemble
Vue d'ensemble
Terrasse
Terrasse
Hall d'entrée
PASAGEWAY
Salle de bains
Salle de bains
Salle de bains
Chambre à coucher principale
Chambre à coucher principale
Chambre à coucher
Chambre à coucher
Terrasse
Terrasse
Terrasse
Piscine
Piscine
Piscine
Terrasse
Salle d'exercice
Salle d'exercice
Salle d'exercice
Sauna
Jardin
Jardin
Jardin
Photo aérienne
Photo aérienne
Piscine
Piscine
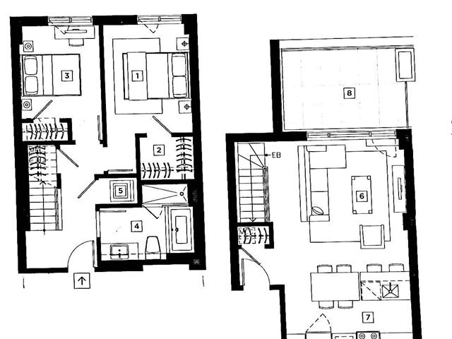
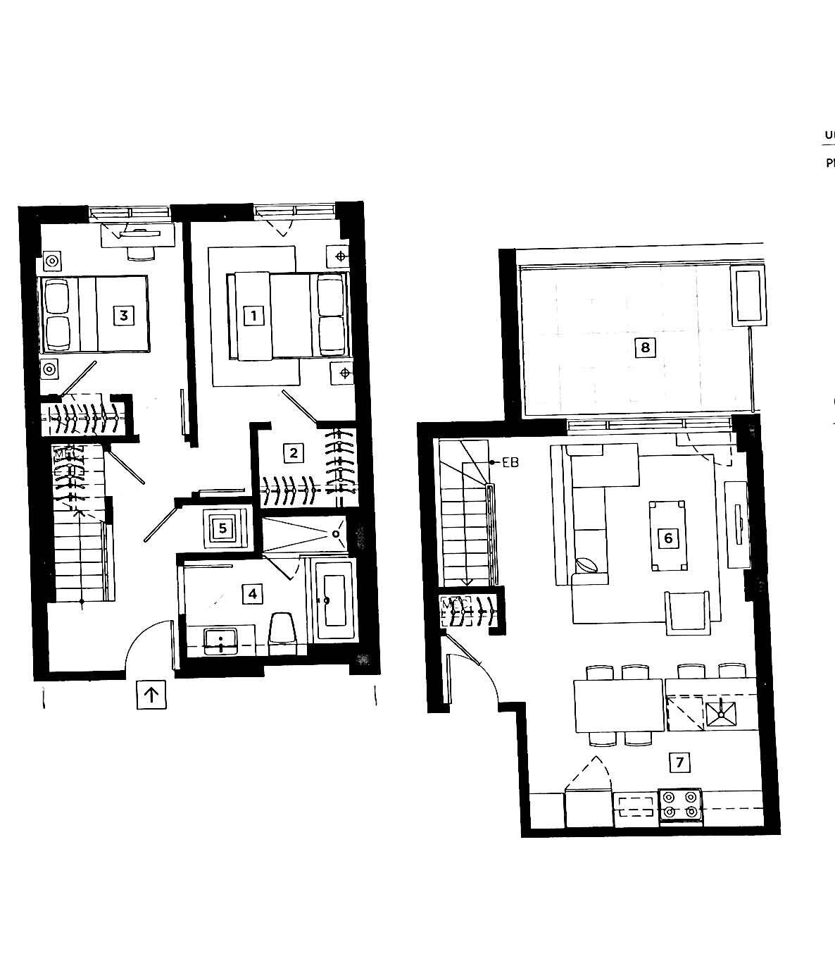
Plan (croquis)
Hall d'entrée
Caractéristiques
| Genre de propriété | Condo | Année de construction | 2014 |
| Type de bâtiment | Détaché (Isolé) | Possibilité d'échange | |
| Dimensions du bâtiment | Certificat de localisation | ||
| Superficie habitable | 797.60 pi. ca. | ||
| Dimensions du terrain | Prise de possession | 55 jours | |
| Zonage | Résidentiel |
| Système d'égouts | Municipal | Piscine | Creusée, Chauffée |
| Approvisionnement en eau | Municipalité | Stationnement (total) | Au garage (2) |
| Allée | |||
| Revêtement de la toiture | Garage | Simple largeur, Intégré | |
| Revêtement | Terrain | ||
| Fenestration | Topographie | ||
| Type de fenestration | Particularités du site | Rue privée | |
| Énergie/Chauffage | Vue | ||
| Sous-sol | Proximité | Université, Transport en commun, Ski de fond, École secondaire, École primaire, Piste cyclable, Parc-espace vert, Garderie/CPE, Cegep, quartier Shop Angus et Promenade Masson | |
| Salle(s) de bains |
| Stationnement cadastré (exclus du prix) | Garage | Stationnement cadastré (inclus dans le prix) | Garage |
| Équipement disponible | Semi-meublé, Interphone, Climatiseur mural, Balcon privé | Services disponibles | Sauna, Espace de rangement intérieur, Piscine extérieure, Système de détection de fuite d'eau, Salle d'exercice, Cour, Espace pour bicyclette, Balcon/Terrasse, Aires communes |
| Facilité d'accès | Ascenseur | Restrictions/Permissions | Animaux permis sous conditions, Chiens permis, Chats permis |
Particularités des pièces
| Pièce(s) | NIVEAU | DIMENSIONS | REVÊTEMENT DE SOL | Informations additionnelles |
|---|---|---|---|---|
| Chambre à coucher principale | Autre | 9.2x11.8 P | ||
| Penderie (Walk-in) | Autre | 5.8x4.8 P | ||
| Chambre à coucher | Autre | 8.5x10 P | ||
| Salle de bains | Autre | 9.10x8.1 P | ||
| Salon | Autre | 14.10x14.1 P | ||
| Cuisine | Autre | 13.1x8.5 P | Salle à manger |
Inclusions
Addenda
***Un stationnement supplémentaire ainsi qu'un 2e rangement
est disponible en priorité à l'acheteur au prix de $ 65
000,00***
Ce penthouse en duplex vous propose le summum du confort
urbain. Situé côté cour intérieure du prestigieux U31 dans
le secteur Shop Angus, il combine élégance et tranquillité.
Dès votre entrée, vous découvrez une terrasse privée
attenante à l'aire de vie principale, offrant une vue
spectaculaire sur le Stade olympique, parfaite pour
recevoir ou savourer l'été.
À l'étage supérieur (6e), les plafonds de 10 pi et la
fenestration généreuse baignent l'espace de lumière. La
cuisine moderne offre comptoir en quartz, dosseret
mosaïque, évier profond et cellier; le salon donne sur la
terrasse exclusive avec BBQ au gaz.
À l'étage inférieur, intimité assurée: grande chambre
principale avec placard aménagé, chambre secondaire fermée
idéale comme bureau avec lit escamotable. une salle de bain
contemporaine avec douche pluie et lavabos, buanderie et
rangement.
Deux climatiseurs muraux assurent votre confort. L'unité
comprend un stationnement intérieur et un rangement;
possibilité d'un second stationnement avec rangement
adjacent pour 65K.
U31 se distingue par son architecture contemporaine et la
qualité de son insonorisation, de son isolation et de ses
matériaux. Les résidents profitent d'un centre
d'entraînement, de jardins verdoyants et d'une terrasse sur
le toit avec piscine extérieure offrant une vue panoramique
sur Montréal; le lounge BBQ et la piscine chauffée au sel
permettent d'admirer le pont JacquesCartier. Le hall vitré
mène au gym et intègre la végétation des jardins.
Le quartier Angus offre une qualité de vie incomparable:
station de métro Préfontaine et lignes d'autobus à quelques
minutes; piste cyclable vers le mont Royal; épiceries,
SAQ®, restaurants, chocolaterie, boulangerie, boucherie,
fromagerie et pharmacies; parcs Maisonneuve et JeanDuceppe.
Le Walk Score de 97 % confirme que tout est accessible.
Être dans la première phase d'un projet offre des
avantages. Aujourd'hui, la phase 1 est entièrement livrée
et habitée; vous bénéficiez d'une cour intérieure mature,
d'une communauté établie et d'un environnement paisible,
sans nuisances de chantier.
De plus la vue dégagée de cet unité offre une source de
lumière exceptionnelle et un environnement extérieur
intime!
La vie au sein du projet U31 incarne l'équilibre entre
dynamisme urbain et oasis de verdure; l'architecture
soignée et les jardins luxuriants créent un milieu unique
où il fait bon vivre au quotidien. Les environs offrent des
activités culturelles et sportives et des services à
proximité.
Ne tardez pas à réserver votre visite: vous méritez ce coin
de paradis urbain





